Maison à vendre à Durbuy
Propriété d’exception à Durbuy
Référence du bien : 7336367
745 000 €
7
5
521.83 m²
3569 m²
EasyHome vous présente cette magnigique propriété nichée au cœur du charmant village de Grande Enneille, sur la commune très prisée de Durbuy. Cette propriété de caractère offre un cadre de vie exceptionnel et un potentiel d’exploitation immédiat.
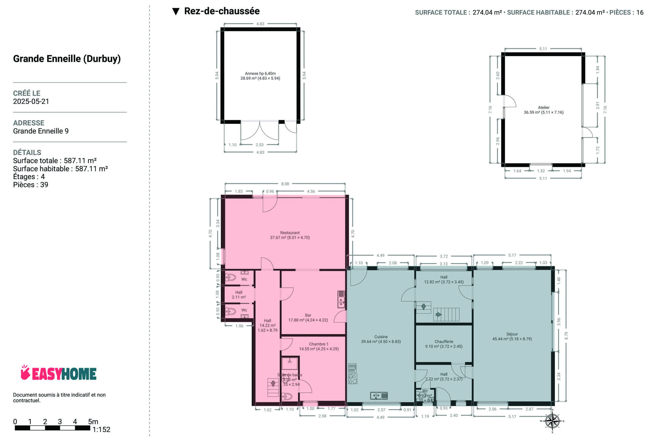
Le bâtiment principal est divisé en deux parties distinctes :
Une habitation privée chaleureuse, avec 3 chambres, 1 salle de douche, de généreux espaces de vie et une terrasse offrant une vue panoramique sur la vallée.
Un Bed & Breakfast opérationnel, comprenant 4 chambres avec salle de douche privative, un espace bar/petite restauration attenant à une élégante véranda actuellement utilisée comme salle de déjeuner. Au second étage, un grenier de 85 m² reste aménageable selon vos envies. Ce dernier génère actuellement un chiffre d’affaires d’environ 65.000 € par an.
Deux dépendances à colombages complètent la propriété. Elles sont à rénover selon vos projets.
Au niveau technique, la toiture a été en grande partie refaite en 2016, le bien bénéficie d’un PEB C, l’installation électrique est conforme et une chaudière au pellet assure le chauffage.De surplus, 14 panneaux photovoltaïques sont installés.
Le tout est implanté sur deux parcelles totalisant 35 ares.
Vous êtes à la recherche d'un bien rare, alliant charme, vue et rentabilité immédiate?
N'hésitez pas à nous contacter au 084/77.00.43 afin d'organiser une visite dès que possilbe.
PRIX : 795.000€ sous réserve d'acceptation des propriétaires.
Le bâtiment principal est divisé en deux parties distinctes :
Une habitation privée chaleureuse, avec 3 chambres, 1 salle de douche, de généreux espaces de vie et une terrasse offrant une vue panoramique sur la vallée.
Un Bed & Breakfast opérationnel, comprenant 4 chambres avec salle de douche privative, un espace bar/petite restauration attenant à une élégante véranda actuellement utilisée comme salle de déjeuner. Au second étage, un grenier de 85 m² reste aménageable selon vos envies. Ce dernier génère actuellement un chiffre d’affaires d’environ 65.000 € par an.
Deux dépendances à colombages complètent la propriété. Elles sont à rénover selon vos projets.
Au niveau technique, la toiture a été en grande partie refaite en 2016, le bien bénéficie d’un PEB C, l’installation électrique est conforme et une chaudière au pellet assure le chauffage.De surplus, 14 panneaux photovoltaïques sont installés.
Le tout est implanté sur deux parcelles totalisant 35 ares.
Vous êtes à la recherche d'un bien rare, alliant charme, vue et rentabilité immédiate?
N'hésitez pas à nous contacter au 084/77.00.43 afin d'organiser une visite dès que possilbe.
PRIX : 795.000€ sous réserve d'acceptation des propriétaires.
Détails
En chiffres
Nbre de toilette(s)
8
nombre de sdd
5
chambre 1
14.55m²
chambre 2
16.63m²
chambre 3
19.13m²
chambre 4
28.65m²
chambre 5
18.22m²
chambre 6
21.48m²
Bâtiment
Année de construction
1911
nombre de garage
0
parking extérieur
Oui
Parking(s) intérieur
6
Equipement de base
accès handicapés
Non
ascenseur
Non
chauffage
pellets
type de cuisine
amer. super-équipée
Equipement extérieur
piscine
Non
Spécificités terrain
Type d'environnement
campagne
risque d'inondation
pas situé en zone inondable
Certificats / Attestations
certificat d'électricité
oui, conforme
Energie
Label PEB
C
PEB E-SPEC (kwh/m²/an)
249
Emission CO2
1
E total
128537
PEB code unique
20250522022309
PEB valide jusqu'au
05/22/2035 00:00
Date du PEB
05/22/2025 00:00