nouveau
Bien exceptionnel à vendre à Lasne
Villa d’exception de près d’un hectare à Plancenoit
Référence du bien : 7554675
1 090 000 €
4
2
367 m²
9124 m²
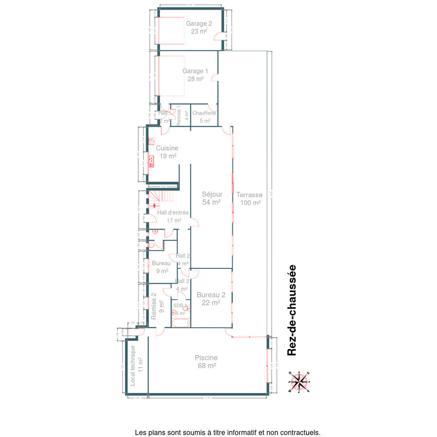
Easy Home a le plaisir de vous présenter cette magnifique villa de prestige de 367 m² habitables, située sur près d'un hectare de terrain.
Implantée à Plancenoit, cette propriété est idéalement située près du Lion de Waterloo, à proximité de toutes les commodités, (axes routiers, commerces, écoles), tout en offrant un cadre de vie calme et verdoyant.
En entrant, un vaste hall d’entrée accueillant vous mène vers les espaces de vie lumineux, comprenant une cuisine ouverte, une salle à manger et un salon agrémenté d’un poêle à bois, le tout en enfilade. Ce niveau se complète par deux bureaux de 9 et 22 m².
La villa dispose également d'une piscine intérieure, constamment chauffée et entretenue.
Au premier, vous trouverez d’un côté un espace parental avec une suite, une SDD et un dressing. De l’autre côté, deux chambres et un bureau, ainsi qu’une seconde suite parentale avec sa salle de bain. Un grenier de stockage est également à disposition.
Un des atouts majeurs, son extérieur, une terrasse de 100m2 parfaitement orienté plein sud, sans vis-à-vis, au calme, avec une vue sur les bois, offrant un cadre idyllique.
Informations complémentaires :
Toutes les grosses rénovations, telles que les châssis, la toiture, la chaudière et la conformité de l’électricité, ont été réalisées en 2015.
Ne manquez pas l'opportunité d'acquérir cette propriété d'exception. Contactez-nous pour plus d’informations.
Prix : 1.090.000 euros sous réserve de l’acceptation des propriétaires.
Implantée à Plancenoit, cette propriété est idéalement située près du Lion de Waterloo, à proximité de toutes les commodités, (axes routiers, commerces, écoles), tout en offrant un cadre de vie calme et verdoyant.
En entrant, un vaste hall d’entrée accueillant vous mène vers les espaces de vie lumineux, comprenant une cuisine ouverte, une salle à manger et un salon agrémenté d’un poêle à bois, le tout en enfilade. Ce niveau se complète par deux bureaux de 9 et 22 m².
La villa dispose également d'une piscine intérieure, constamment chauffée et entretenue.
Au premier, vous trouverez d’un côté un espace parental avec une suite, une SDD et un dressing. De l’autre côté, deux chambres et un bureau, ainsi qu’une seconde suite parentale avec sa salle de bain. Un grenier de stockage est également à disposition.
Un des atouts majeurs, son extérieur, une terrasse de 100m2 parfaitement orienté plein sud, sans vis-à-vis, au calme, avec une vue sur les bois, offrant un cadre idyllique.
Informations complémentaires :
Toutes les grosses rénovations, telles que les châssis, la toiture, la chaudière et la conformité de l’électricité, ont été réalisées en 2015.
Ne manquez pas l'opportunité d'acquérir cette propriété d'exception. Contactez-nous pour plus d’informations.
Prix : 1.090.000 euros sous réserve de l’acceptation des propriétaires.
Détails
En chiffres
largeur front de rue
51m
surface bâtie
481m²
Nbre de toilette(s)
4
nombre de sdd
1
chambre 1
28.09m²
chambre 2
12.75m²
chambre 3
12.22m²
chambre 4
31.55m²
surface brute
569m²
largeur de façade
37m
Garage
27.84m²
Nbre de terrasse(s)
1
Salle de séjour
53.71m²
Cuisine
19.24m²
buanderie
10.16m²
Dressing
8.25m²
bureau
9.35m²
Bâtiment
Année de construction
1970
nombre de garage
2
parking intérieur
Oui
parking extérieur
Oui
Année de rénovation
2015
Parking(s) extérieur
6
Equipement de base
accès handicapés
Oui
cuisine
Oui
ascenseur
Non
double vitrage
Oui
chauffage
mazout (chauf. centr.)
type de cuisine
amer. semi-équipée
sdb
douche et bain
Equipement extérieur
piscine
Oui
type de piscine
intérieure
Spécificités terrain
orientation du bâtiment
sud
Type d'environnement
résidentiel
Type d'environnement 2
boisé
Exposition de la façade avant
nord
risque d'inondation
pas situé en zone inondable
Risque d'inondation 2023
Classe A (aucune chance)
Raccordements
égouts
Oui
électricité
Oui
citerne à mazout
Oui
eau
Oui
Certificats / Attestations
attestation du sol
Oui
capacité de la citerne à mazout
2500
certificat d'électricité
oui, conforme
À proximité
Magasins
Oui
Ecoles
Oui
Transports en commun
Oui
Autoroute
Oui
Energie
Label PEB
E
PEB E-SPEC (kwh/m²/an)
388
Emission CO2
96
E total
169060
PEB code unique
20251119014704
PEB valide jusqu'au
11/19/2035 00:00
Date du PEB
11/19/2025 00:00