nouveau
Commerce à vendre à Beyne-heusay
Showroom + entrepôts + permis déjà accordé pour appart 2 ch
Référence du bien : 7521427
Faire offre à partir de
699 000 €
1289 m²
1289 m²
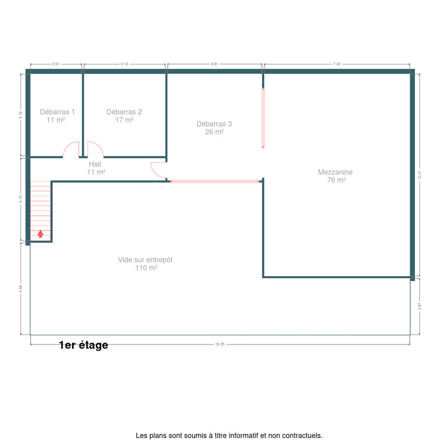
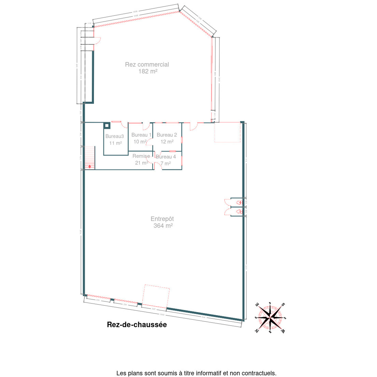
Vous recherchez un immeuble commercial offrant une visibilité exceptionnelle, de vastes espaces de stockage et un potentiel d’exploitation rare sur le marché ? Cette opportunité unique est faite pour vous ! Easyhome et Simon ont le plaisir de vous présenter cet imposant immeuble commercial idéalement situé sur la Grand Route N3, l’axe reliant Amercoeur à Fléron, l’une des voiries les plus fréquentées du secteur, garantissant à toute activité une visibilité optimale. Le bien se compose d’un showroom lumineux de 182m², parfait pour accueillir une surface d’exposition professionnelle, de 4 bureaux, d’une remise, ainsi que d’un entrepôt de 364m² offrant de très nombreuses possibilités d’exploitation. Une mezzanine de 130m² offre un espace de stockage supplémentaire, tandis que le sous-sol de 511m² accueille une immense zone de stockage additionnelle ainsi qu’un local chaufferie, idéal pour les activités nécessitant une logistique importante. Information capitale : un permis d’urbanisme a été accordé pour la construction d’un appartement 2 chambres de 110m² habitables au-dessus de l’entrepôt. Le projet peut représenter un atout majeur pour générer un revenu additionnel ou loger un exploitant.
Localisation stratégique, volumes impressionnants, permis déjà obtenu : cet immeuble constitue une occasion exceptionnelle pour toute activité commerciale nécessitant visibilité et grande capacité de stockage. Prix d’affichage : faire offre à partir de 699.000 € (sous réserve d’acceptation).
Localisation stratégique, volumes impressionnants, permis déjà obtenu : cet immeuble constitue une occasion exceptionnelle pour toute activité commerciale nécessitant visibilité et grande capacité de stockage. Prix d’affichage : faire offre à partir de 699.000 € (sous réserve d’acceptation).
Détails
En chiffres
surface bâtie
612m²
Nbre de toilette(s)
2
largeur de la vitrine commerciale
23
nombre de magasins
1
largeur de façade
15m
bureaux
40m²
Bâtiment
Année de construction
1987
nombre de garage
2
parking intérieur
Oui
parking extérieur
Oui
sécurité
Oui
Parking(s) intérieur
1
Parking(s) extérieur
1
type de toit
en pente
Equipement de base
chauffage (ind/coll)
individuel
ascenseur
Non
toilettes H/F
Oui
chauffage
mazout (chauf. centr.)
type d'électricité
380 V
type de cuisine
non-équipée
Spécificités terrain
Type d'environnement
commerce
Type d'environnement 2
centre ville
Exposition de la façade avant
sud
risque d'inondation
pas situé en zone inondable
Raccordements
égouts
Oui
électricité
Oui
eau
Oui
Certificats / Attestations
attestation du sol
Oui
À proximité
magasins
10m
transports en commun
50m
Magasins
Oui
Transports en commun
Oui
Autoroute
Oui
Autoroute
7000m
Energie
Label PEB
Ap
PEB E-SPEC (kwh/m²/an)
1
Emission CO2
1