Chalet à vendre à Hastière
Châlet entièrement rénové à Hastière
Référence du bien : 7211519
95 000 €
1
1
35 m²
240 m²
Situé dans un cadre verdoyant à Hastière, ce chalet entièrement rénové allie confort et tranquillité. Implanté sur un terrain de 240 m², il offre un environnement paisible, idéal pour les amoureux de la nature et du calme.
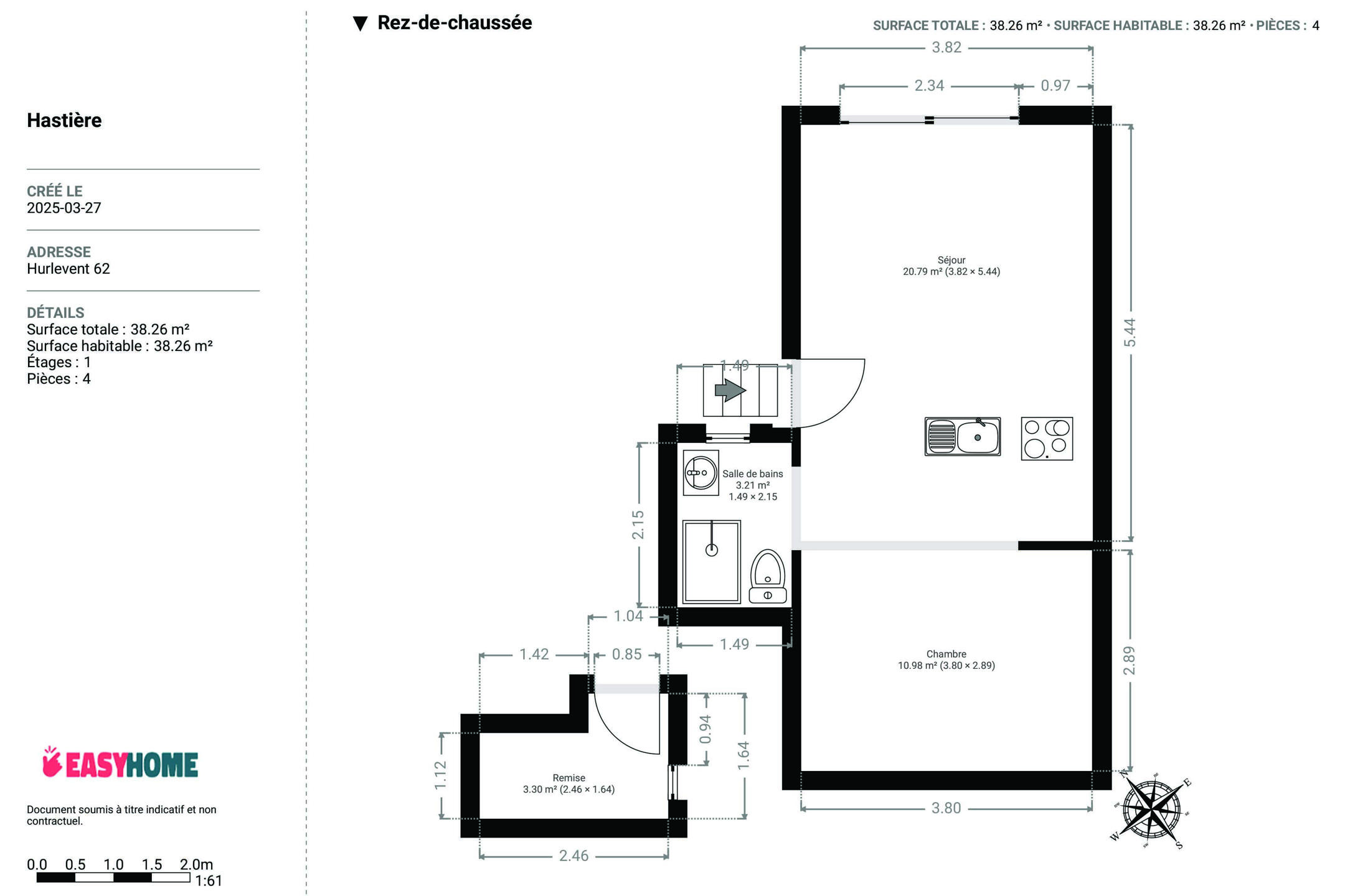
D'une superficie de 20 m², l’espace séjour bénéficie d'une belle luminosité et d'une atmosphère chaleureuse. La chambre de 11 m² constitue un véritable cocon, parfait pour des nuits reposantes. La salle de douche avec WC est fonctionnelle et moderne.
L’extérieur a tout pour plaire : une toute nouvelle terrasse pour profiter des beaux jours, offrant une vue dégagée sur de agréables espaces verts, ainsi qu’une remise fonctionnelle pour y entreposer vos vélos, outils ou accessoires de jardin.
Ce chalet est idéal tant comme résidence principale que secondaire, ou encore comme investissement en location saisonnière. Une opportunité à ne pas manquer !
Remarques : ce bien entièrement rénové bénéficie d’équipements modernes, dont une climatisation réversible et des châssis en PVC à double vitrage. Le certificat électrique est conforme. Bien qu’il soit situé en zone de loisirs, la domiciliation y est autorisée, offrant ainsi la possibilité d’y résider à l’année dans un cadre paisible.
Prix: 95.000€ (Sous réserve d'acceptation des propriétaires)
D'une superficie de 20 m², l’espace séjour bénéficie d'une belle luminosité et d'une atmosphère chaleureuse. La chambre de 11 m² constitue un véritable cocon, parfait pour des nuits reposantes. La salle de douche avec WC est fonctionnelle et moderne.
L’extérieur a tout pour plaire : une toute nouvelle terrasse pour profiter des beaux jours, offrant une vue dégagée sur de agréables espaces verts, ainsi qu’une remise fonctionnelle pour y entreposer vos vélos, outils ou accessoires de jardin.
Ce chalet est idéal tant comme résidence principale que secondaire, ou encore comme investissement en location saisonnière. Une opportunité à ne pas manquer !
Remarques : ce bien entièrement rénové bénéficie d’équipements modernes, dont une climatisation réversible et des châssis en PVC à double vitrage. Le certificat électrique est conforme. Bien qu’il soit situé en zone de loisirs, la domiciliation y est autorisée, offrant ainsi la possibilité d’y résider à l’année dans un cadre paisible.
Prix: 95.000€ (Sous réserve d'acceptation des propriétaires)
Détails
En chiffres
Nbre de toilette(s)
1
nombre de sdd
1
chambre 1
10.98m²
Salle de séjour
20.79m²
Bâtiment
Année de construction
1979
parking intérieur
Non
parking extérieur
Oui
Equipement de base
accès handicapés
Non
cuisine
Oui
ascenseur
Non
double vitrage
Oui
chauffage
réversible
type de cuisine
équipée
sdb
douche
Equipement extérieur
piscine
Non
Spécificités terrain
Type d'environnement
calme
Type d'environnement 2
campagne
risque d'inondation
pas situé en zone inondable
Certificats / Attestations
certificat d'électricité
oui, conforme