Envoyer un Email
Enregistrer des biens similaires
Remonter
nouveau
sous-option

Maison sous-option à Faimes

Maison Q-ZEN gros œuvre fermé – 3 ch – à personnaliser

Référence du bien : 7210794
300 000 €
3
1
147 m²
1721 m²

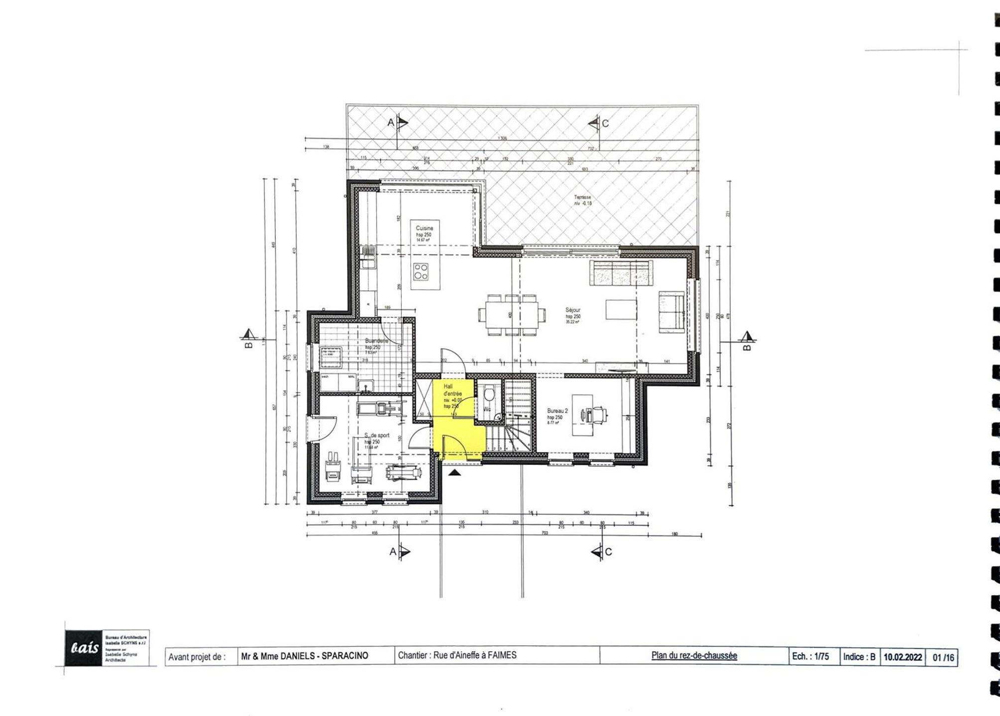
Philippe de chez Easyhome a le plaisir de vous présenter cette maison 4 façades vendue en gros œuvre fermé, située dans un environnement paisible et verdoyant. Conçue selon les normes Q-ZEN (Quasi Zéro Énergie), cette construction neuve vous permet de finaliser l’intérieur à votre goût tout en bénéficiant d’une structure déjà performante et bien avancée.


Caractéristiques générales :

  • Briques collées : finitions modernes et durables

  • Maison 4 façades en gros œuvre fermé

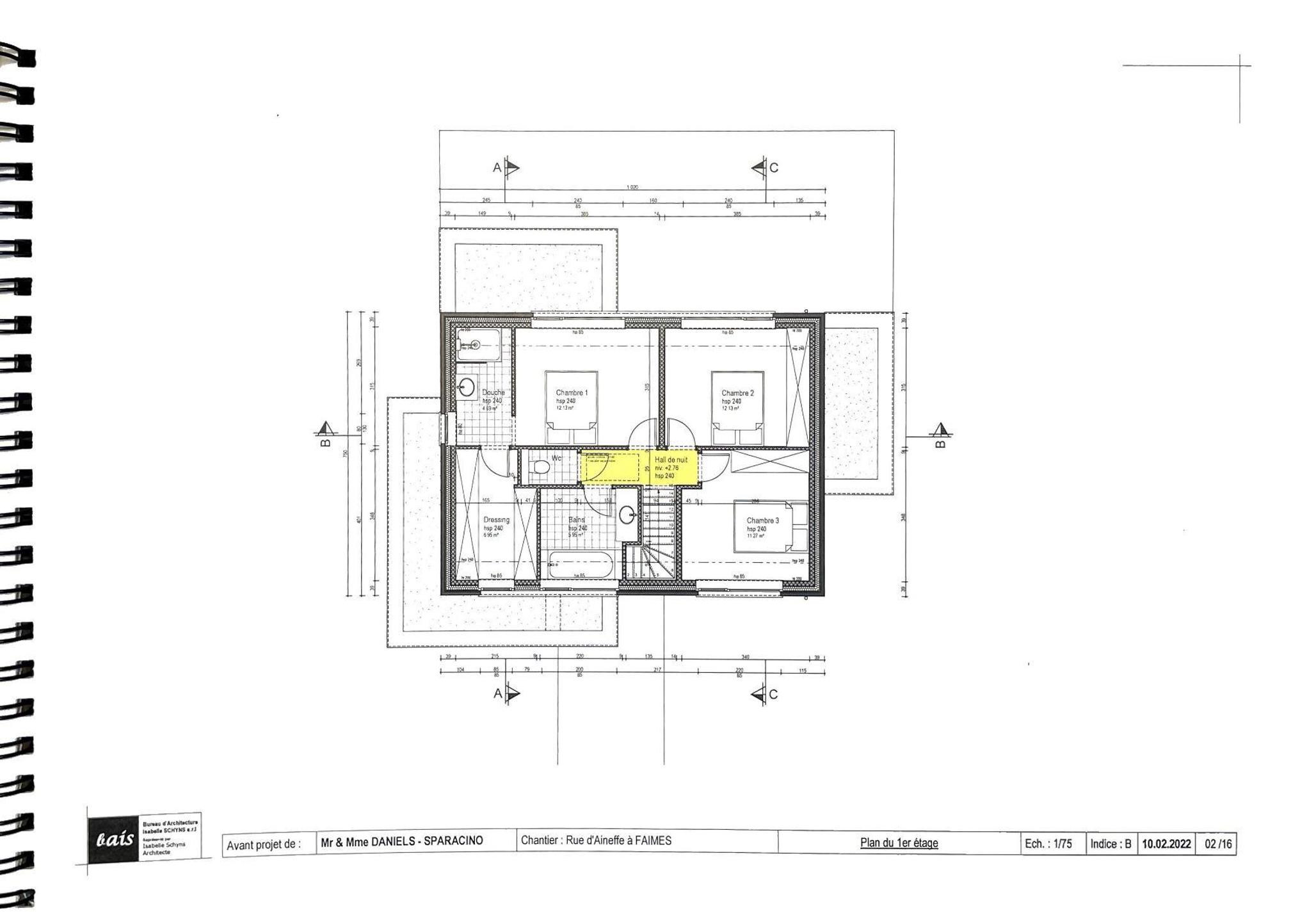
  • 3 chambres + combles exploitables

  • Possibilité d’un atelier, pièce ou bureau chauffé à l’arrière du bâtiment
    Plans et permis déjà accordés !

  • Charpente à entraits porteurs avec plancher OSB en place

  • Toiture inclinée à 40° pour un espace sous toit optimisé


Préinstallations et équipements :

  • Châssis Deceuninck PVC avec coulissant à levage

  • Préinstallations EC/EF pour salles d’eau et buanderie

  • Double meuble évier prévu en salle de bain

  • Trappe à linge et passe-linge installés

  • Seuils en pierre de taille (petit granit)

  • Habillage en aluminium laqué entre châssis

  • Escalier escamotable isolé vers les combles


Performance énergétique :

  • Construction conforme au standard Q-ZEN

  • Micro-station ELOY Oxyfix C-90 (1–5 EH)

  • Drain d'infiltration de 50 m³ pour gestion des eaux

  • Isolation et étanchéité prévues pour test final


️ À terminer par l’acquéreur :

  • Chauffage, cuisine, sanitaires et revêtements

  • Finitions murales et sols

  • Aménagement du volume bureau/atelier si souhaité


Intéressé(e) ?
Contactez l’agence Easyhome au 084 770 043 pour organiser une visite ou recevoir le cahier des charges complet.

Une maison neuve Q-ZEN, à personnaliser, avec un espace pro ou hobby déjà prévu ? Ne laissez pas passer cette opportunité unique !

Détails

En chiffres

Bâtiment

Equipement de base

Equipement extérieur

Spécificités terrain

Raccordements

Certificats / Attestations

À proximité

Localisation