Maison vendu(e) à Anhée
Belle opportunité à ne pas manquer !
Référence du bien : 6782466
VENDU
2
2
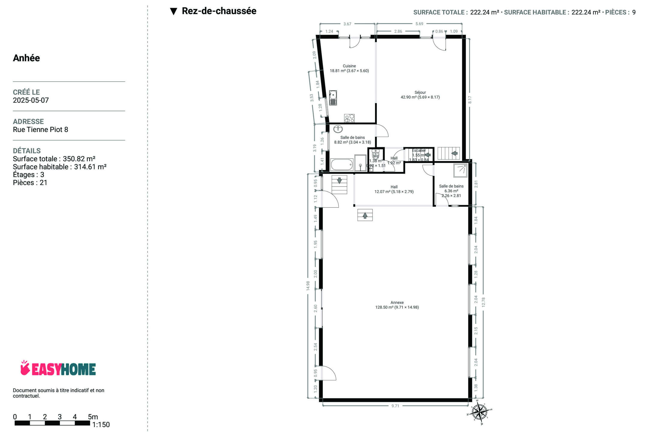
250 m²
540 m²
Située dans un quartier calme et verdoyant, cette maison présente un beau potentiel, tant pour un investisseur que pour une famille en quête d’espace. Le bien se compose d’une première partie entièrement habitable, comprenant un séjour lumineux, une cuisine équipée, une salle de bains et deux chambres en enfilade. Le confort est assuré par un poêle à pellets performant et une installation électrique conforme aux normes en vigueur.
Attenante à cette partie, une seconde zone de la maison est à terminer, ce qui offre de nombreuses possibilités d’aménagement selon les besoins de l’acquéreur.
Le tout est implanté sur un terrain de 5 ares, offrant un agréable espace extérieur. Deux garages viennent compléter l’ensemble, ainsi que des caves, parfaites pour le rangement ou un atelier. Ce bien combine une partie immédiatement habitable et un espace à développer selon vos projets, ce qui en fait une opportunité rare sur le marché.
Que vous soyez à la recherche d’un investissement rentable ou d’un lieu de vie évolutif, cette maison mérite votre attention.
PRIX : 269.000 € (sous réserve d'acceptation des propriétaires).
Attenante à cette partie, une seconde zone de la maison est à terminer, ce qui offre de nombreuses possibilités d’aménagement selon les besoins de l’acquéreur.
Le tout est implanté sur un terrain de 5 ares, offrant un agréable espace extérieur. Deux garages viennent compléter l’ensemble, ainsi que des caves, parfaites pour le rangement ou un atelier. Ce bien combine une partie immédiatement habitable et un espace à développer selon vos projets, ce qui en fait une opportunité rare sur le marché.
Que vous soyez à la recherche d’un investissement rentable ou d’un lieu de vie évolutif, cette maison mérite votre attention.
PRIX : 269.000 € (sous réserve d'acceptation des propriétaires).
Détails
En chiffres
Nbre de toilette(s)
1
nombre de sdd
2
chambre 1
14.34m²
chambre 2
14.79m²
Garage
36m²
Salle de séjour
42.9m²
Cuisine
18m²
buanderie
5.31m²
atelier
128m²
Bâtiment
Année de construction
1948
nombre de garage
0
parking intérieur
Non
parking extérieur
Non
Année de rénovation
2023
Equipement de base
accès handicapés
Non
cuisine
Oui
ascenseur
Non
double vitrage
Oui
chauffage
pellets
type de cuisine
équipée
sdb
douche et bain
Equipement extérieur
piscine
Non
Spécificités terrain
Type d'environnement
résidentiel
risque d'inondation
pas situé en zone inondable
Certificats / Attestations
certificat d'électricité
oui, conforme
Energie
Label PEB
D
PEB E-SPEC (kwh/m²/an)
322
Emission CO2
10
E total
46354
PEB code unique
20220618005659
PEB valide jusqu'au
06/18/2032 00:00