Maison vendu(e) à Etalle
Fermette rénovée 4 chambres – garage – jardin
Référence du bien : 5716479
Faire offre à partir de
VENDU
4
2
230 m²
858 m²
EASYHOME Immobilier est ravi de vous présenter cette charmante fermette rénovée avec goût à Sivry (ETALLE), baignée de lumière et conçue avec des espaces de vie agréables. Idéalement située dans un village calme, elle est à proximité immédiate de toutes les commodités nécessaires. Cette propriété dispose de 4 chambres confortables avec 2 salles de bains, offrant amplement d'espace pour votre famille ou vos invités.
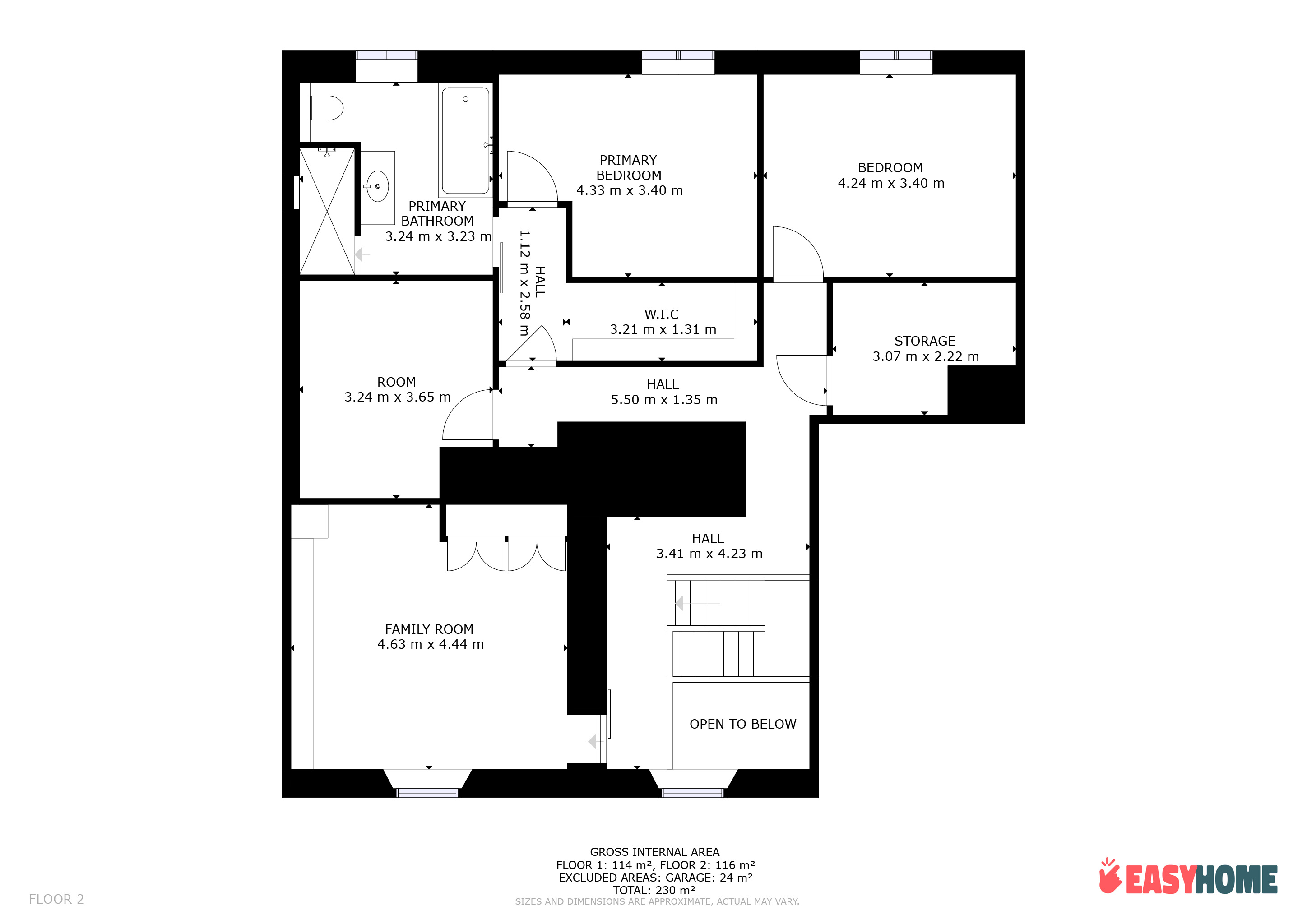
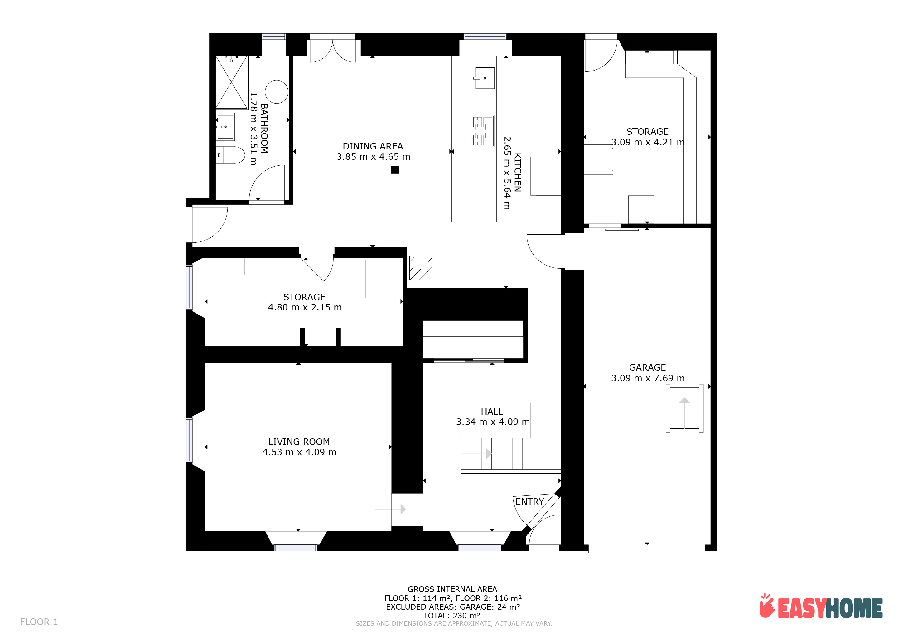
Composition : Au rez, le hall d'entrée avec son escalier orignal et unique, un salon super cozy avec poêle à bois, une vaste salle à manger et cuisine équipée ouverte avec poêle à pellets donnant un accès direct vers la terrasse orientée plein Sud et son jardin, une salle de douche avec WC, une grande buanderie ainsi qu'un garage avec porte motorisée. Au 1er étage le hall de nuit desservant 4 chambres (possibilité bureau), une salle de bains avec baignoire balnéo - douche - WC, un dressing ainsi qu'un espace de rangement fermé. Au 2ème étage, un grenier entièrement aménageable selon vos envies et besoins.
Équipements: toiture récente en ardoises (2015), double vitrage avec volets, 2 poêles (bois et pellets), 40 panneaux photovoltaïques et système domotique.
Ne manquez pas cette occasion unique d'acquérir une propriété offrant calme, espace et possibilités d'agrandissement.
Contactez nous dès maintenant pour organiser une visite et laissez vous séduire par le charme et le potentiel de cette fermette.
Ne tardez pas à venir visiter ! Infos et rdv au +32 84 77 00 43
Prix : Faire offre à partir de 350.000€ (sous réserve d'acceptation du propriétaire)
Composition : Au rez, le hall d'entrée avec son escalier orignal et unique, un salon super cozy avec poêle à bois, une vaste salle à manger et cuisine équipée ouverte avec poêle à pellets donnant un accès direct vers la terrasse orientée plein Sud et son jardin, une salle de douche avec WC, une grande buanderie ainsi qu'un garage avec porte motorisée. Au 1er étage le hall de nuit desservant 4 chambres (possibilité bureau), une salle de bains avec baignoire balnéo - douche - WC, un dressing ainsi qu'un espace de rangement fermé. Au 2ème étage, un grenier entièrement aménageable selon vos envies et besoins.
Équipements: toiture récente en ardoises (2015), double vitrage avec volets, 2 poêles (bois et pellets), 40 panneaux photovoltaïques et système domotique.
Ne manquez pas cette occasion unique d'acquérir une propriété offrant calme, espace et possibilités d'agrandissement.
Contactez nous dès maintenant pour organiser une visite et laissez vous séduire par le charme et le potentiel de cette fermette.
Ne tardez pas à venir visiter ! Infos et rdv au +32 84 77 00 43
Prix : Faire offre à partir de 350.000€ (sous réserve d'acceptation du propriétaire)
Détails
En chiffres
largeur front de rue
17m
surface bâtie
150m²
Nbre de toilette(s)
2
nombre de sdd
2
chambre 1
20.5m²
chambre 2
14.7m²
chambre 3
14.4m²
chambre 4
11.8m²
surface brute
255m²
largeur de façade
12m
Nbre de terrasse(s)
1
Salle de séjour
18.5m²
Salle à manger
17.9m²
Cuisine
15m²
orientation de la terrasse 1
sud
Bâtiment
nombre de garage
1
parking intérieur
Oui
parking extérieur
Oui
Année de rénovation
2015
type de façade avant
brique
Parking(s) intérieur
1
Parking(s) extérieur
4
type de toit
en pente
Equipement de base
accès handicapés
Oui
cuisine
Oui
chauffage (ind/coll)
individuel
ascenseur
Non
double vitrage
Oui
chauffage
pellets
type de cuisine
super-équipée
sdb
douche et bain
double vitrage
isol. thermique et acoustique
Videophone
Oui
Spécificités terrain
orientation du bâtiment
sud
Type d'environnement
calme
Type d'environnement 2
campagne
Exposition de la façade avant
nord
risque d'inondation
zone innondable potentielle
Raccordements
égouts
Oui
électricité
Oui
télévision par cable
Oui
câbles téléphoniques
Oui
eau
Oui
Certificats / Attestations
attestation du sol
Oui
certificat d'électricité
oui, non conforme
Certificat électricité - date
08-08-2022
À proximité
Magasins
Oui
Ecoles
Oui
Transports en commun
Oui
Autoroute
Oui
Energie
Label PEB
F
PEB E-SPEC (kwh/m²/an)
430
Emission CO2
86
PEB code unique
20220819006295
PEB valide jusqu'au
08/19/2032 00:00
Date du PEB
08/19/2022 00:00