nouveau
Bungalow vendu(e) à Hastière
Joli bungalow à vendre
Référence du bien : 6658787
VENDU
2
1
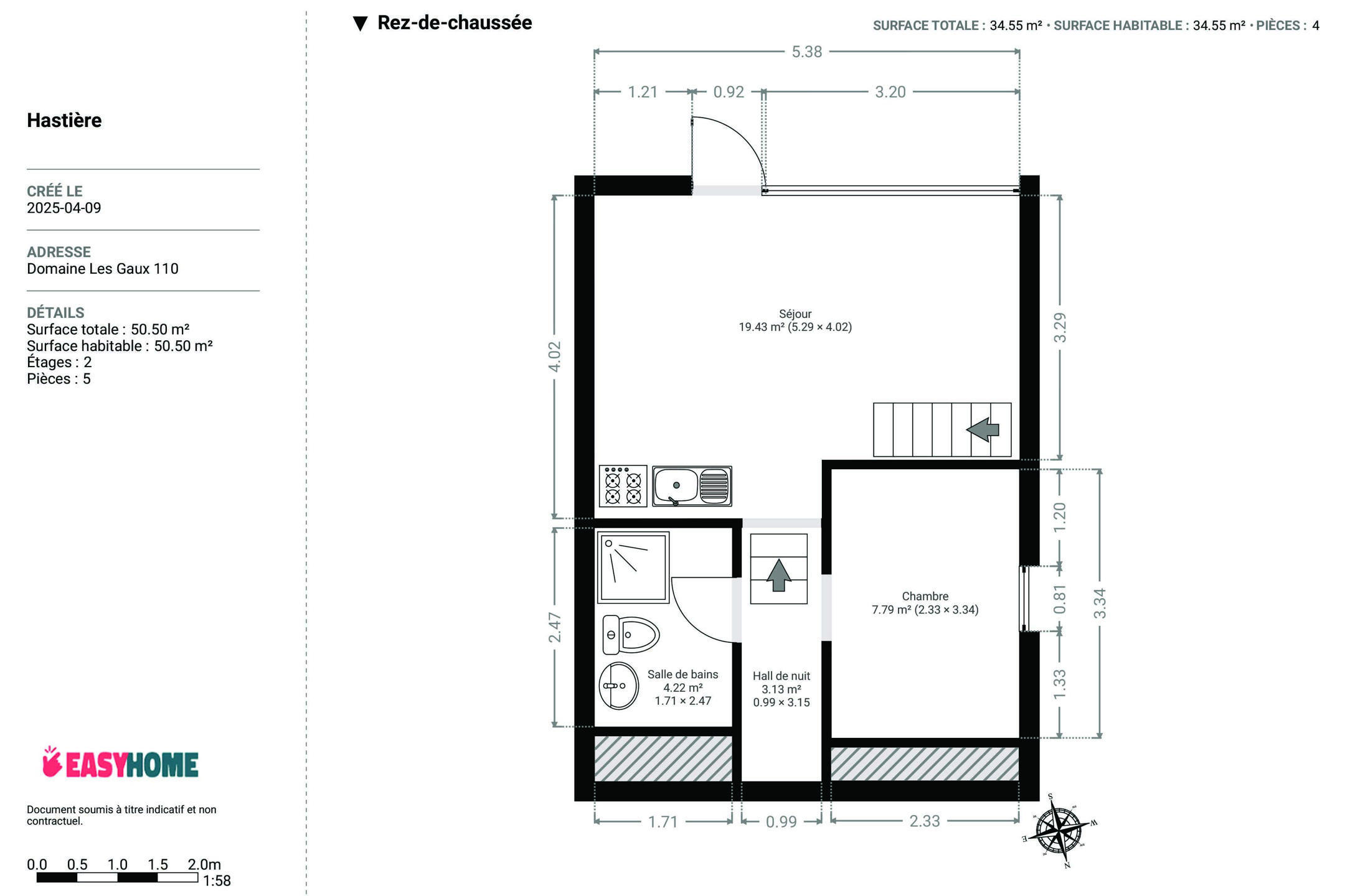
50 m²
42 m²
Easyhome vous propose ce charmant bungalow situé dans le cadre verdoyant du Domaine des Gaux à Hastière. Une opportunité idéale pour une résidence secondaire, un pied-à-terre ou encore un investissement dans un lieu paisible et facilement accessible.
Le bien se compose d’un rez-de-chaussée comprenant un séjour ouvert lumineux d’environ 20 m², une chambre confortable et une salle de douche. À l’étage, vous trouverez une mezzanine de ± 16 m² offrant de multiples possibilités : chambre supplémentaire, bureau ou espace de détente selon vos envies.
À l’extérieur, vous profiterez d’une agréable terrasse orientée plein sud, parfaite pour savourer les journées ensoleillées en toute tranquillité.
Ce bungalow est situé dans un domaine résidentiel accessible toute l’année, à proximité immédiate de la Meuse et de nombreuses activités touristiques et de loisirs.
Remarques : Chauffage Pellet, PEB G, zone de loisir, domiciliation possible, charge de copropriété de 78€ par mois.
PRIX : 69.000 € (sous réserve d'acceptation des propriétaires)
Le bien se compose d’un rez-de-chaussée comprenant un séjour ouvert lumineux d’environ 20 m², une chambre confortable et une salle de douche. À l’étage, vous trouverez une mezzanine de ± 16 m² offrant de multiples possibilités : chambre supplémentaire, bureau ou espace de détente selon vos envies.
À l’extérieur, vous profiterez d’une agréable terrasse orientée plein sud, parfaite pour savourer les journées ensoleillées en toute tranquillité.
Ce bungalow est situé dans un domaine résidentiel accessible toute l’année, à proximité immédiate de la Meuse et de nombreuses activités touristiques et de loisirs.
Remarques : Chauffage Pellet, PEB G, zone de loisir, domiciliation possible, charge de copropriété de 78€ par mois.
PRIX : 69.000 € (sous réserve d'acceptation des propriétaires)
Détails
En chiffres
Nbre de toilette(s)
1
nombre de sdd
1
chambre 1
7.79m²
chambre 2
15.96m²
Salle de séjour
19.43m²
Bâtiment
Année de construction
1976
parking intérieur
Non
parking extérieur
Oui
Equipement de base
accès handicapés
Non
cuisine
Oui
chauffage (ind/coll)
individuel
ascenseur
Non
double vitrage
Oui
chauffage
pellets
type de cuisine
kitchenette
sdb
douche
double vitrage
isol. thermique et acoustique
Equipement extérieur
piscine
Non
Spécificités terrain
orientation du bâtiment
nord
Type d'environnement
calme
Type d'environnement 2
résidentiel
Exposition de la façade avant
sud
risque d'inondation
pas situé en zone inondable
Certificats / Attestations
attestation du sol
Oui
certificat d'électricité
oui, conforme
Certificat électricité - date
11-03-2022
Energie
Label PEB
G
PEB E-SPEC (kwh/m²/an)
670
Emission CO2
25
E total
32461
PEB code unique
20250430008037
PEB valide jusqu'au
04/30/2025 00:00
Date du PEB
04/30/2035 00:00