Maison vendu(e) à Rochefort
Maison 4 chambres + annexe
Référence du bien : 6821921
VENDU
4
1
182 m²
811 m²
EasyHome vous propose cette maison en pierre du pays située à Jemelle, à proximité de Rochefort et à seulement 10 minutes de Marche-en-Famenne, cette propriété vous offre des espaces aménagés confortablement ainsi qu'un véritable potentiel d’aménagement.
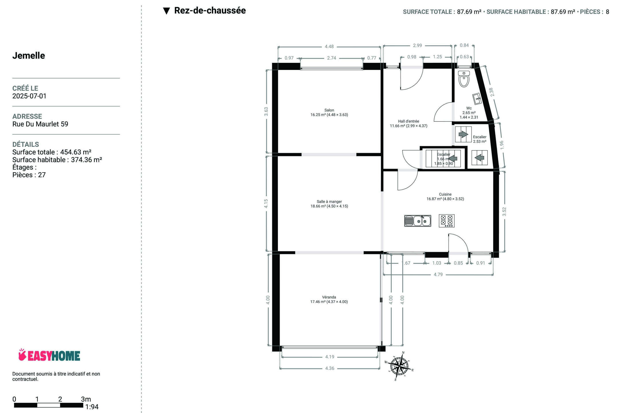
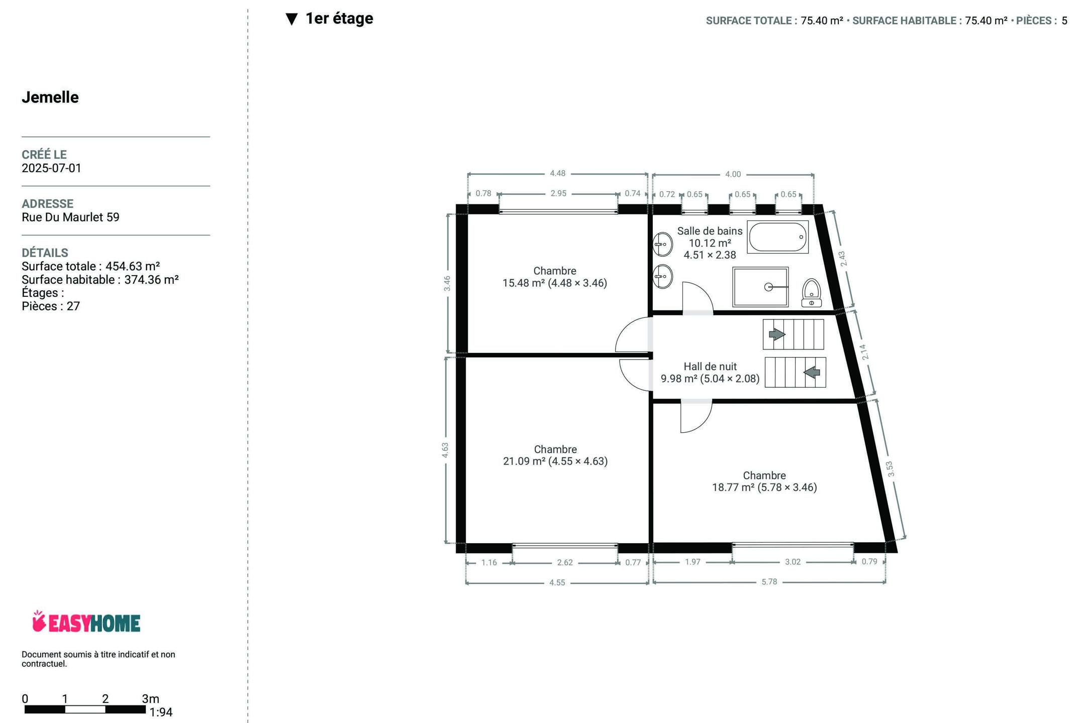
La maison d’habitation développe 182 m² habitables, répartis sur 4 chambres, un vaste séjour illuminé par une veranda ainsi que des espaces bien pensés pour accueillir une famille. Le bien comprend également un grenier de 25 m², ainsi que plus de 75 m² de caves utilisables, parfaits pour le stockage ou pour un usage polyvalent.
Côté technique : installation électrique conforme, châssis double vitrage PVC récents, et chauffage central au bois via chaudière.
L’ensemble est bien entretenu et au goût du jour, ce qui permet une installation immédiate et sereine.
Sur la propriété, une annexe non attenante en gros œuvre fermé sur deux niveaux complète l’ensemble. D’une superficie au sol d’environ 80 m², elle peut être exploitée en entrepôt, garage, atelier ou même projet d’habitation selon vos besoins. Son accès et sa configuration en font un atout rare.
Cette propriété combine confort immédiat et fort potentiel de développement : une opportunité à ne pas manquer pour qui cherche de l’espace et de la flexibilité.
N'hésitez pas à nous contacter au 084/77.00.43 afin d'organiser une visite.
PRIX ; 295.000 € sous réserve d'acceptation des propriétaires.
La maison d’habitation développe 182 m² habitables, répartis sur 4 chambres, un vaste séjour illuminé par une veranda ainsi que des espaces bien pensés pour accueillir une famille. Le bien comprend également un grenier de 25 m², ainsi que plus de 75 m² de caves utilisables, parfaits pour le stockage ou pour un usage polyvalent.
Côté technique : installation électrique conforme, châssis double vitrage PVC récents, et chauffage central au bois via chaudière.
L’ensemble est bien entretenu et au goût du jour, ce qui permet une installation immédiate et sereine.
Sur la propriété, une annexe non attenante en gros œuvre fermé sur deux niveaux complète l’ensemble. D’une superficie au sol d’environ 80 m², elle peut être exploitée en entrepôt, garage, atelier ou même projet d’habitation selon vos besoins. Son accès et sa configuration en font un atout rare.
Cette propriété combine confort immédiat et fort potentiel de développement : une opportunité à ne pas manquer pour qui cherche de l’espace et de la flexibilité.
N'hésitez pas à nous contacter au 084/77.00.43 afin d'organiser une visite.
PRIX ; 295.000 € sous réserve d'acceptation des propriétaires.
Détails
En chiffres
Nbre de toilette(s)
2
nombre de sdd
1
chambre 1
15.48m²
chambre 2
18.77m²
chambre 3
21.09m²
chambre 4
20.85m²
Bâtiment
Année de construction
1935
parking intérieur
Oui
parking extérieur
Oui
Equipement de base
accès handicapés
Non
ascenseur
Non
chauffage
bois
type de cuisine
équipée
Equipement extérieur
piscine
Non
Spécificités terrain
Type d'environnement
calme
risque d'inondation
pas situé en zone inondable
Certificats / Attestations
certificat d'électricité
oui, conforme
Energie
Label PEB
F
PEB E-SPEC (kwh/m²/an)
459
Emission CO2
1
E total
95354
PEB code unique
20250703010870
PEB valide jusqu'au
07/03/2025 00:00
Date du PEB
07/03/2035 00:00