Envoyer un Email
Enregistrer des biens similaires
Remonter
nouveau

Maison vendu(e) à Rochefort

Maison 5 chambres avec 14 ares de terrain et garage

Référence du bien : 6778025
VENDU
5
1
188 m²
1402 m²

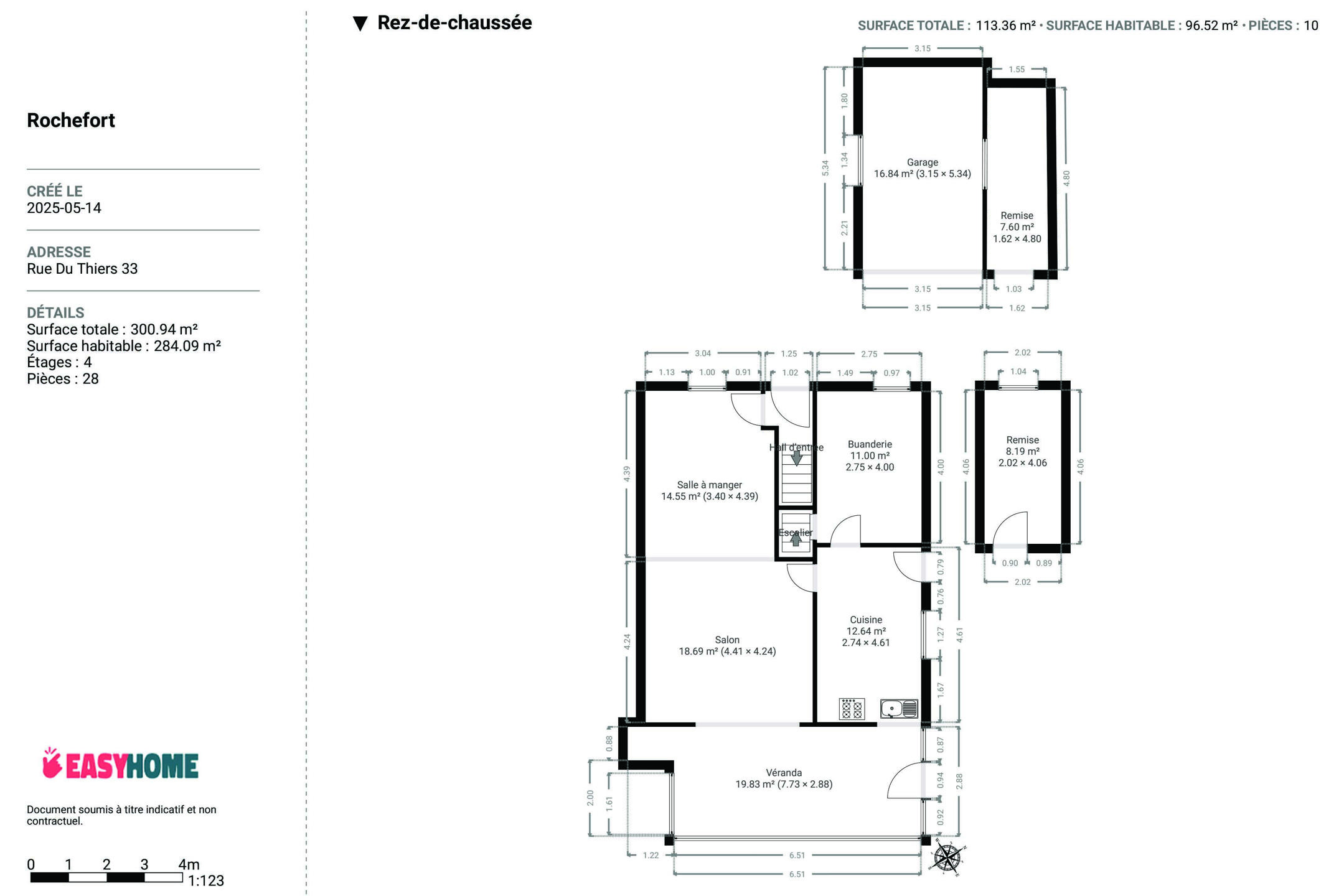
EASYHOME Immobilier a le plaisir de vous présenter cette charmante maison familiale, idéalement située à deux pas du centre-ville de Rochefort.

Cette maison 3 façades dispose d’un garage et d’un vaste terrain de 14 ares, en surplomb des environs, offrant un panorama exceptionnel sur toute la ville.

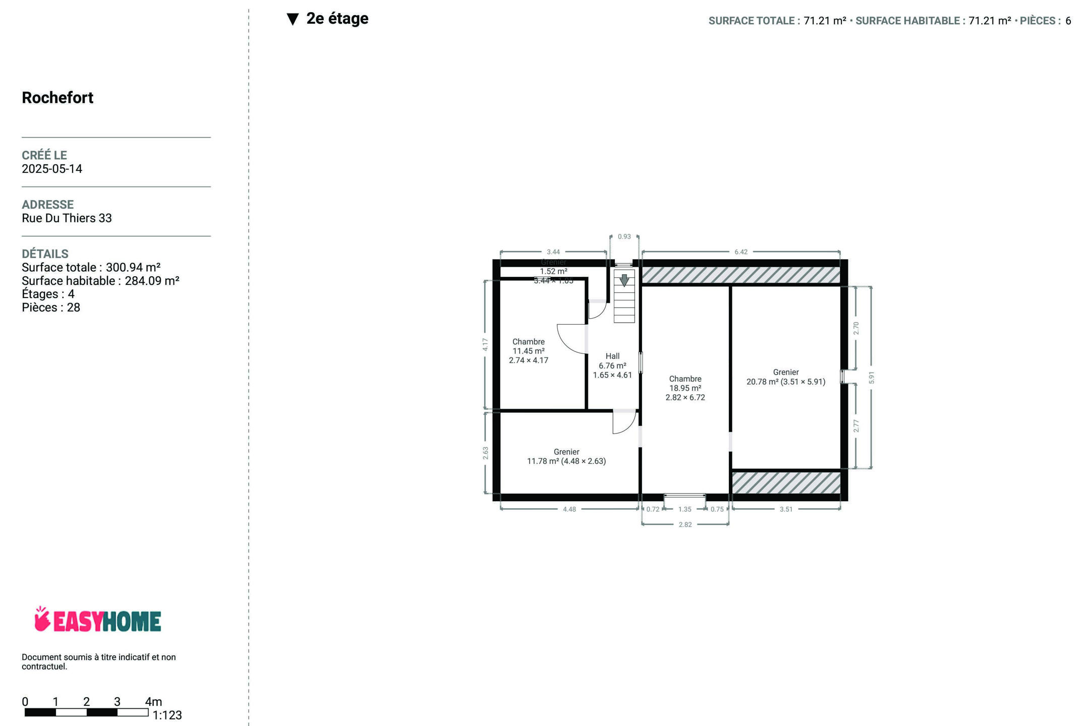
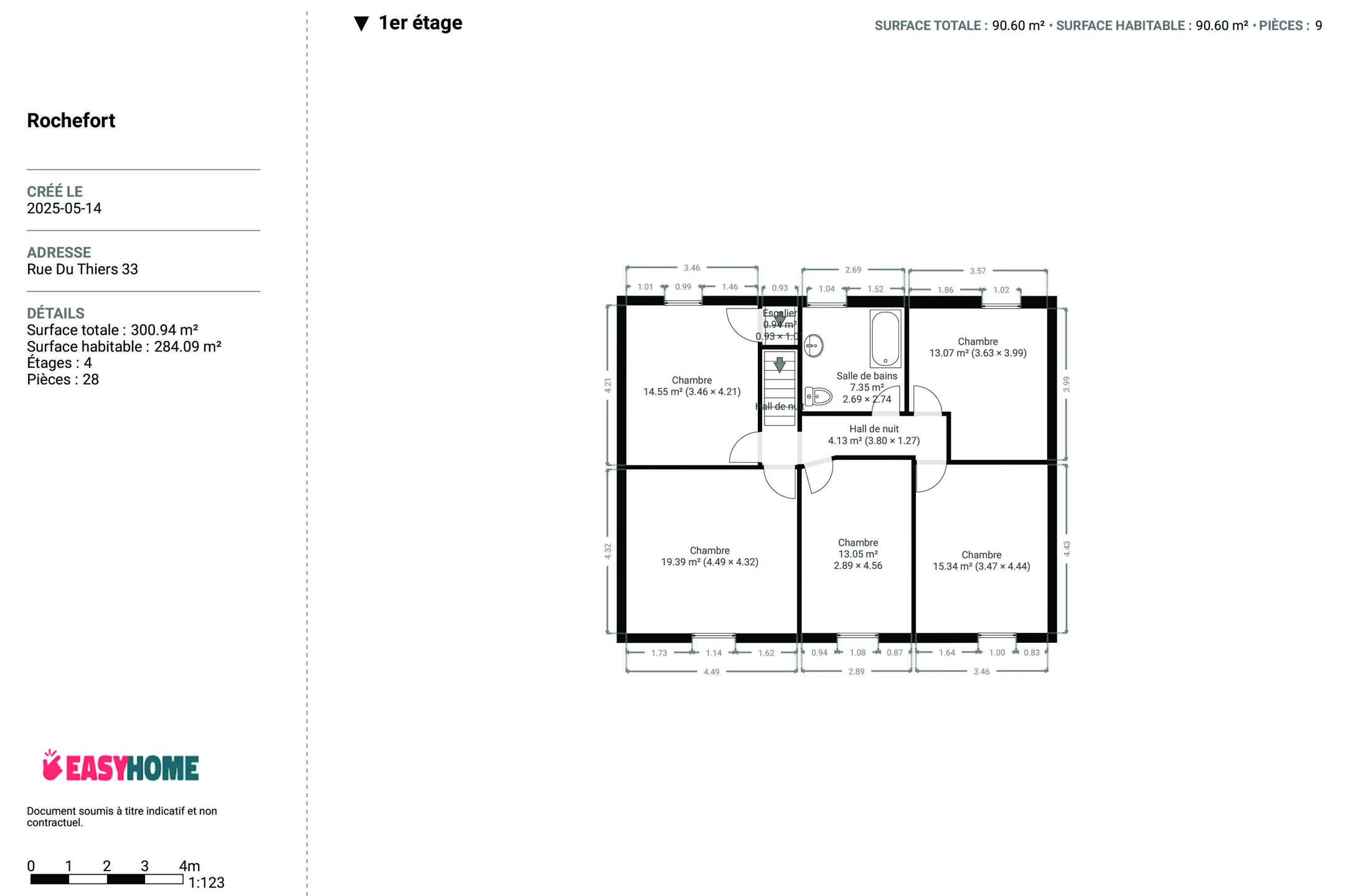
Tout est réuni pour accueillir confortablement une grande famille : 5 chambres spacieuses (sans compter le grenier aménageable), une véranda lumineuse, un grand terrain, un garage, une vaste zone de parking, ainsi qu’un accès facile au centre-ville à pied.

Sur le plan technique, la maison est équipée de châssis en PVC double vitrage et d’un système de chauffage central au mazout, entre autres équipements.

Prix : 249.000 € (sous réserve d’acceptation des propriétaires).

Détails

En chiffres

Bâtiment

Equipement de base

Equipement extérieur

Spécificités terrain

Certificats / Attestations

Energie

Localisation